Waterworks materials businessInquiry
Shake Block
- Major features
-
By meshing regular tetrahedrons, it is possible to lay this steadily in any field. In addition, the KD value is 8.6, the porosity is 56%, it is a product with excellent stability and economic efficiency.
- Applications
-
Coasts: Detached breakwaters, jetties
Rivers: Foot protectionAcquisition of Hydraulic Characteristic Values Certificate of Bulkhead Block
Shapes, specifications
Shake block[1.0 to 50.0 ton type] CAD data download (Member only)
![Shake block[1.0 to 50.0 ton type]](./img/water/shape_shake01.gif)
| Standards (ton type) | Volume (㎥) | Form area (㎡) | Actual mass (ton) | Actual weight (KN) | Basic size(m) | ||
|---|---|---|---|---|---|---|---|
| g | h | l | |||||
| 1.0 | 0.436 | 3.761 | 1.003 | 9.836 | 1.440 | 1.194 | 1.298 |
| 2.0 | 0.870 | 6.185 | 2.001 | 19.623 | 1.813 | 1.503 | 1.628 |
| 3.0 | 1.300 | 8.084 | 2.990 | 29.322 | 2.073 | 1.718 | 1.861 |
| 4.0 | 1.735 | 9.796 | 3.991 | 39.138 | 2.282 | 1.891 | 2.048 |
| 5.0 | 2.180 | 11.410 | 5.014 | 49.171 | 2.463 | 2.041 | 2.211 |
| 6.0 | 2.611 | 12.867 | 6.005 | 58.889 | 2.615 | 2.167 | 2.348 |
| 8.0 | 3.469 | 15.550 | 7.979 | 78.247 | 2.875 | 2.383 | 2.581 |
| 10.0 | 4.353 | 18.090 | 10.012 | 98.184 | 3.101 | 2.570 | 2.784 |
| 12.0 | 5.213 | 20.400 | 11.990 | 117.582 | 3.293 | 2.729 | 2.956 |
| 15.0 | 6.516 | 23.671 | 14.987 | 146.972 | 3.547 | 2.940 | 3.184 |
| 20.0 | 8.680 | 28.659 | 19.964 | 195.780 | 3.903 | 3.235 | 3.504 |
| 25.0 | 10.878 | 33.313 | 25.019 | 245.353 | 4.208 | 3.488 | 3.777 |
| 30.0 | 13.069 | 37.649 | 30.059 | 294.778 | 4.474 | 3.708 | 4.016 |
| 40.0 | 17.383 | 45.534 | 39.981 | 392.080 | 4.920 | 4.077 | 4.416 |
| 50.0 | 21.711 | 52.809 | 49.935 | 489.695 | 5.298 | 4.391 | 4.756 |
A large-sized shake block[60.0 to 80.0 ton type]CAD data download (Member only)
![A large-sized shake block[60.0 to 80.0 ton type]](./img/water/shape_shake02.gif)
| Standards (ton type) | Volume (㎥) | Form area (㎡) | Actual mass (ton) | Actual weight (KN) | Basic size(m) | ||
|---|---|---|---|---|---|---|---|
| g | h | l | |||||
| 60.0 | 26.143 | 57.183 | 60.128 | 589.654 | 5.327 | 4.422 | 4.812 |
| 80.0 | 34.869 | 69.288 | 80.199 | 786.484 | 5.864 | 4.868 | 5.297 |
A truncated shake blockCAD data download (Member only)

| Standards (ton type) | Volume (㎥) | Form area (㎡) | Actual mass (ton) | Actual weight (KN) | Basic size(m) | ||
|---|---|---|---|---|---|---|---|
| g | h | l | |||||
| 1.5 | 0.707 | 4.880 | 1.626 | 15.946 | 1.813 | 0.769 | 1.628 |
| 2.5 | 1.056 | 6.379 | 2.429 | 23.820 | 2.073 | 0.880 | 1.861 |
| 3.0 | 1.409 | 7.731 | 3.241 | 31.783 | 2.282 | 0.968 | 2.048 |
| 4.0 | 1.771 | 9.004 | 4.073 | 39.942 | 2.463 | 1.045 | 2.211 |
| 5.0 | 2.120 | 10.153 | 4.876 | 47.817 | 2.615 | 1.110 | 2.348 |
| 6.5 | 2.817 | 12.271 | 6.479 | 63.537 | 2.875 | 1.220 | 2.581 |
| 8.0 | 3.535 | 14.276 | 8.131 | 79.738 | 3.101 | 1.316 | 2.784 |
| 10.0 | 4.233 | 16.099 | 9.736 | 95.478 | 3.293 | 1.397 | 2.956 |
| 12.0 | 5.291 | 18.680 | 12.169 | 119.337 | 3.547 | 1.505 | 3.184 |
| 16.0 | 7.048 | 22.616 | 16.210 | 158.966 | 3.903 | 1.656 | 3.504 |
| 20.0 | 8.833 | 26.288 | 20.316 | 199.232 | 4.208 | 1.786 | 3.777 |
Construction Example
-

- Hyogo prefecture, Mega Port
4 ton type standard type shake block
-

- Shizuoka prefecture, Shimizu coast
10 ton type truncated shake block
-

- Shizuoka prefecture, Fuji coast
60 ton large type shake block
-

- Shizuoka prefecture, Shinohara coast
25 ton standard type shake block
Surf Block
- Major features
-
It is a block with excellent stability against external forces at coasts and rivers because the center of gravity is low, and the block surface roughness is moderate.
- Applications
-
Coasts: Artificial reef work, gently sloping revetment bank work, coating work, Foot protection
Rivers: Foot protection, civil engineering work
Shapes, specifications
Surf Block[1.0 to 15.0 ton type]CAD data download (Member only)
![Surf block[1.0 to 15.0 ton type]](./img/water/shape_surf01.gif)
| Standards (ton type) | Volume (㎥) | Form area (㎡) | Actual mass (ton) | Actual weight (KN) | Basic size(m) | ||
|---|---|---|---|---|---|---|---|
| L | B | H | |||||
| 1.0 | 0.435 | 4.453 | 1.001 | 9.816 | 1.190 | 1.190 | 0.525 |
| 2.0 | 0.871 | 7.076 | 2.003 | 19.643 | 1.500 | 1.500 | 0.662 |
| 3.0 | 1.305 | 9.260 | 3.002 | 29.440 | 1.716 | 1.716 | 0.757 |
| 4.0 | 1.743 | 11.234 | 4.009 | 39.315 | 1.890 | 1.890 | 0.833 |
| 5.0 | 2.176 | 13.023 | 5.005 | 49.082 | 2.035 | 2.035 | 0.897 |
| 6.0 | 2.609 | 14.700 | 6.001 | 58.850 | 2.162 | 2.162 | 0.953 |
| 8.0 | 3.481 | 17.814 | 8.006 | 78.512 | 2.380 | 2.380 | 1.050 |
| 10.0 | 4.352 | 20.674 | 10.010 | 98.165 | 2.564 | 2.564 | 1.131 |
| 12.0 | 5.219 | 23.335 | 12.004 | 117.719 | 2.724 | 2.724 | 1.201 |
| 15.0 | 6.528 | 27.090 | 15.015 | 147.247 | 2.935 | 2.935 | 1.294 |
* For details on reinforcing steel connections, please contact us.
A large-sized surf block[20.0 to 30.0 ton type]CAD data download (Member only)
![A large-sized surf block[20.0 to 30.0 ton type]](./img/water/shape_surf02.gif)
| Standards (ton type) | Volume (㎥) | Form area (㎡) | Actual mass (ton) | Actual weight (KN) | Basic size(m) | ||
|---|---|---|---|---|---|---|---|
| L | B | H | |||||
| 20.0 | 8.713 | 28.648 | 20.039 | 196.515 | 3.500 | 3.000 | 1.340 |
| 25.0 | 10.880 | 33.975 | 25.024 | 245.402 | 3.850 | 3.000 | 1.490 |
| 30.0 | 13.058 | 38.594 | 30.033 | 294.523 | 3.850 | 3.000 | 1.745 |
* We use hanging rebar for block transportation. For details about hanging rebar, please contact us.
Construction Example
-

- Shizuoka Prefecture Ashitori River Bed Protection Work
Surf Block 2 ton type
-

- Oita Prefecture Mountain Bridge Pier Foot Protection Work
Surf Block 4 ton type
-

- Hokkaido Shirao Coastbank Breakwater
Surf Block 2 ton type
-

- Akita Prefecture Port of Honjo Breakwater
Surf Block 3 ton type
Surf Flat
- Major features
-
The surf flat is a flat stone, and the structure of the formwork consists of four (N type) bottom plates which facitilates work such as assembly and stamping. Furthermore, because the required quanity per unit area is low, it is very economical.
- Applications
-
Coasts: Artificial reef work, gently sloping revetment bank work, coating work、Foot protection
Rivers: Foot protection, civil engineering workAcquisition of Hydraulic Characteristic Values Certificate of Bulkhead Block
Shapes, specifications
Surf Flat [K type]CAD data download (Member only)
![Surf Flat [K type]](./img/water/shape_flat01.gif)
| Standards (ton type) | Volume (㎥) | Form area (㎡) | Actual mass (ton) | Actual weight (KN) | Basic size(m) | ||
|---|---|---|---|---|---|---|---|
| L | B | H | |||||
| 1.0 | 0.462 | 3.188 | 1.062 | 10.415 | 1.300 | 1.300 | 0.459 |
| 2.0 | 0.904 | 4.999 | 2.079 | 20.388 | 1.600 | 1.600 | 0.583 |
| 3.0 | 1.391 | 7.331 | 3.199 | 31.371 | 1.890 | 1.890 | 0.629 |
| 4.0 | 1.789 | 8.315 | 4.114 | 40.345 | 2.035 | 2.035 | 0.709 |
| 5.0 | 2.285 | 9.630 | 5.255 | 51.534 | 2.162 | 2.162 | 0.763 |
| 6.0 | 2.702 | 10.843 | 6.214 | 60.939 | 2.380 | 2.380 | 0.783 |
* For details on reinforcing steel connections, please contact us.
* We use hanging rebar for block transportation. For details about hanging rebar, please contact us.
Surf Flat [KA type]CAD data download (Member only)
![Surf Flat [KA type]](./img/water/shape_flat02.gif)
| Standards (ton type) | Volume (㎥) | Form area (㎡) | Actual mass (ton) | Actual weight (KN) | Basic size(m) | ||
|---|---|---|---|---|---|---|---|
| L | B | H | |||||
| 1.0 | 0.437 | 3.479 | 1.005 | 9.856 | 1.300 | 1.300 | 0.459 |
| 2.0 | 0.870 | 5.397 | 2.001 | 19.623 | 1.600 | 1.600 | 0.583 |
| 3.0 | 1.308 | 7.924 | 3.008 | 29.498 | 1.890 | 1.890 | 0.629 |
| 4.0 | 1.742 | 8.850 | 4.006 | 39.285 | 2.035 | 2.035 | 0.709 |
| 5.0 | 2.174 | 10.414 | 5.000 | 49.033 | 2.162 | 2.162 | 0.763 |
| 6.0 | 2.611 | 11.588 | 6.005 | 58.889 | 2.380 | 2.380 | 0.783 |
* For details on reinforcing steel connections, please contact us.
* We use hanging rebar for block transportation. For details about hanging rebar, please contact us.
Surf Flat [N type]CAD data download (Member only)
![Surf Flat [N type]](./img/water/shape_flat03.gif)
| Standards (ton type) | Volume (㎥) | Form area (㎡) | Actual mass (ton) | Actual weight (KN) | Basic size(m) | ||
|---|---|---|---|---|---|---|---|
| L | B | H | |||||
| 1.0 | 0.454 | 3.050 | 1.044 | 10.238 | 1.300 | 1.300 | 0.370 |
| 2.0 | 0.888 | 4.776 | 2.042 | 20.025 | 1.600 | 1.600 | 0.470 |
| 3.0 | 1.359 | 6.536 | 3.125 | 30.646 | 1.890 | 1.890 | 0.500 |
| 4.0 | 1.758 | 7.519 | 4.043 | 39.648 | 2.035 | 2.035 | 0.580 |
| 5.0 | 2.205 | 9.070 | 5.071 | 49.730 | 2.162 | 2.162 | 0.610 |
| 6.0 | 2.622 | 10.283 | 6.030 | 59.134 | 2.380 | 2.380 | 0.630 |
* For details on reinforcing steel connections, please contact us.
* We use hanging rebar for block transportation. For details about hanging rebar, please contact us.
Surf Flat [NA type]CAD data download (Member only)
![Surf Flat [NA type]](./img/water/shape_flat04.gif)
| Standards (ton type) | Volume (㎥) | Form area (㎡) | Actual mass (ton) | Actual weight (KN) | Basic size(m) | ||
|---|---|---|---|---|---|---|---|
| L | B | H | |||||
| 1.0 | 0.429 | 3.342 | 0.986 | 9.669 | 1.300 | 1.300 | 0.370 |
| 2.0 | 0.854 | 5.174 | 1.964 | 19.260 | 1.600 | 1.600 | 0.470 |
| 3.0 | 1.276 | 7.129 | 2.934 | 28.773 | 1.890 | 1.890 | 0.500 |
| 4.0 | 1.710 | 8.055 | 3.933 | 38.570 | 2.035 | 2.035 | 0.580 |
| 5.0 | 2.095 | 9.855 | 4.818 | 47.248 | 2.162 | 2.162 | 0.610 |
| 6.0 | 2.531 | 11.028 | 5.821 | 57.085 | 2.380 | 2.380 | 0.630 |
* For details on reinforcing steel connections, please contact us.
* We use hanging rebar for block transportation. For details about hanging rebar, please contact us.
Surf Flat [T type]CAD data download (Member only)
![Surf Flat [T type]](./img/water/shape_flat05.gif)
| Standards (ton type) | Volume (㎥) | Form area (㎡) | Actual mass (ton) | Actual weight (KN) | Basic size(m) | ||
|---|---|---|---|---|---|---|---|
| L | B | H | |||||
| 1.0 | 0.496 | 3.432 | 1.141 | 11.189 | 1.300 | 1.300 | 0.740 |
| 2.0 | 0.974 | 5.393 | 2.240 | 21.967 | 1.600 | 1.600 | 0.940 |
| 3.0 | 1.436 | 7.238 | 3.365 | 32.999 | 1.890 | 1.890 | 1.000 |
| 4.0 | 1.920 | 8.463 | 4.416 | 43.306 | 2.035 | 2.035 | 1.160 |
| 5.0 | 2.393 | 10.117 | 5.504 | 53.976 | 2.162 | 2.162 | 1.220 |
| 6.0 | 2.830 | 11.380 | 6.509 | 63.831 | 2.380 | 2.380 | 1.260 |
* For details on reinforcing steel connections, please contact us.
* We use hanging rebar for block transportation. For details about hanging rebar, please contact us.
Construction Example
-

- Hyogo Prefecture Oba Headworks
Surf Flat with hole, 3 ton type
-

- Shizuoka Prefecture Ugusu River Foot Protection Work
Surf Flat standard, 4 ton type
-

- Toyama Prefecture Jinzumachi River Foot Protection Work
Surf Flat standard, 6 ton type
-

- Fukui Prefecture Kinomeya River Bed Protection Work
Surf Flat Projection type, 1 ton type
Surf Step
- Major features
-
These are blocks that inherited the general idea from the surf block, developed with the theme of “harmony with the power of nature” and advanced by research and experimentation. They are compatible with surf blocks and can be used as a hoistway for surf blocks.
- Applications
-
Coasts: Stairway protection work
Shapes, specifications
Surf stepCAD data download (Member only)

| Standards (ton type) | Volume (㎥) | Form area (㎡) | Actual mass (ton) | Actual weight (KN) | Basic size(m) | ||
|---|---|---|---|---|---|---|---|
| L | B | H | |||||
| 2.0 | 1.031 | 6.600 | 2.371 | 23.252 | 1.500 | 1.500 | 0.590 |
| 4.0 | 1.780 | 9.639 | 4.094 | 40.148 | 1.890 | 1.890 | 0.643 |
* For details on reinforcing steel connections, please contact us.
* We use hanging rebar for block transportation. For details about hanging rebar, please contact us.
Construction Example
-

- Fukui Prefecture Gamou Coast
Surf Step 2 ton type
-

- Ibaraki Prefecture Tamada Coast
Surf Step 2 ton type
-

- Toyama Prefecture Fushiki Port
Surf Step 2 ton type
-

- Chiba Prefecture Node Coast
Surf Step 4 ton type
Surf Flat L type
- Major features
-
- 1. This is a block that incorporates the effects of fish breeding places for foot protection in rivers.
- 2. Reductions in costs of construction can be anticipated because the number needed per unit is small due to the shape.
- 3. It may support low water revetments and high water revetments.
- Applications
-
Rivers: Foot protection
Shapes, specifications
Surf Flat L type (5.0 type) CAD data download (Member only)

| Standards (ton type) | Volume (㎥) | Form area (㎡) | Actual mass (ton) | Actual weight (KN) | Basic size(m) | ||
|---|---|---|---|---|---|---|---|
| L | B | H | |||||
| L-TK | 5.13 | 50.31 | 2.23 | 9.99 | 1.962 | 2.700 | 09.03 |
| L-TK端部型 | 4.90 | 48.05 | 2.13 | 9.61 | 1.962 | 2.500 | 0.903 |
| L-K | 4.85 | 47.56 | 2.11 | 9.07 | 1.962 | 2.700 | 0.653 |
| L-K端部型 | 4.62 | 45.31 | 2.11 | 9.07 | 1.962 | 2.500 | 0.653 |
Surf Fral L type (2.0 type)standard typeCAD data download (Member only)

| Call name | Actual mass (ton) | Actual weight (KN) | Volume (㎡) | Form area (㎡) | Basic size(m) | ||
|---|---|---|---|---|---|---|---|
| L | B | H | |||||
| L-TK | 2.10 | 20.60 | 0.91 | 5.20 | 1.450 | 1.970 | 0.718 |
| L-T | 2.06 | 20.20 | 0.89 | 5.03 | 1.450 | 1.970 | 0.605 |
| L-K | 2.00 | 19.61 | 0.87 | 4.93 | 1.450 | 1.970 | 0.538 |
| L-N | 1.97 | 19.32 | 0.85 | 4.75 | 1.450 | 1.970 | 0.425 |
Surf Fral L type (2.0 type)end typeCAD data download (Member only)

| Call name | Actual mass (ton) | Actual weight (KN) | Volume (㎡) | Form area (㎡) | Basic size(m) | ||
|---|---|---|---|---|---|---|---|
| L | B | H | |||||
| L-TK | 1.98 | 19.42 | 0.86 | 5.01 | 1.450 | 1.800 | 0.718 |
| L-T | 1.94 | 19.02 | 0.84 | 4.84 | 1.450 | 1.800 | 0.605 |
| L-K | 1.89 | 18.53 | 0.82 | 4.74 | 1.450 | 1.800 | 0.538 |
| L-N | 1.85 | 18.14 | 0.80 | 4.57 | 1.450 | 1.800 | 0.425 |
Construction Example
-

- Ministry of Land, Infrastructure and Transport Abe River
Surf Flat L-K5.0
-

- Ministry of Land, Infrastructure and Transport Abe River
Surf Flat L-TK5.0
-

- Ministry of Land, Infrastructure and Transport Oi River
Surf Flat L-TK5.0
-

- Ministry of Land, Infrastructure and Transport Oi River
Surf Flat L-TK5.0
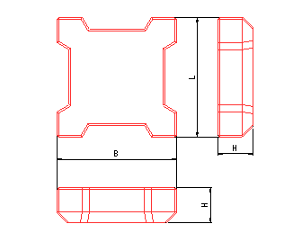
Tine Block S type [Sold only Chugoku or Kyushu region]
- Major features
-
This is an upright wave-dissipating concrete block with beautiful houndstooth check.It has great wave absorbing performance and adapted to natural environment.
- Applications
-
road[protection work] : Upright wave breaker
Coasts: Upright wave breaker
Shapes, specifications
Tine Block S typeCAD data download (Member only)

| Standards (ton type) | Volume (㎡) | Form area (㎡) | Actual mass (ton) | Actual weight (KN) | Basic size(m) | ||
|---|---|---|---|---|---|---|---|
| L | B | H | |||||
| 1.0 | 0.462 | 3.809 | 1.063 | 10.424 | 1.240 | 0.900 | 0.720 |
| 2.0 | 0.903 | 5.951 | 2.077 | 20.368 | 1.550 | 1.125 | 0.900 |
| 4.0 | 1.740 | 9.216 | 4.002 | 39.246 | 1.930 | 1.400 | 1.120 |
Construction Example
-

- Oita Prefecture Usuki city
Tine Block S type [2 ton type/4 ton type]
-

- Nagasaki Prefecture Minamishimabara city
Tine Block S type [1 ton type]
Civil engineering construction material sales
- ・Civil engineering stability sheet
- ・Sheet for prevention of soil draw-out
- ・Improved material
- ・Asphalt mat
- ・Cloth-made form
- ・Pollution prevention membrane
- ・Fender
- ・Other













